Ez egyre növekvő gyereklétszám miatt kinőttük az általános iskolánk jelenlegi épületét és szükségessé vált a bővítés.
Manapság arról olvashatunk, hogy a falusi iskolák sorra bezárnak és a gyerekeket a nagyobb településekre kénytelenek naponta utaztatni a szülők. Hát nálunk ez éppen fordítva van. Krisna-völgy lakossága a gyermekek növekvő születése révén az elmúlt évek során jelentős növekedésnek indult.
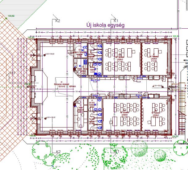
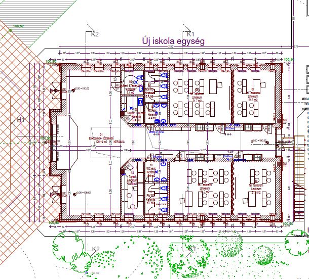
Az iskolaépületünk férőhelyszáma 24 fő, amit idén szeptembertől teljesen ki is használunk. A Krisna-völgyi óvodából immár évente átlagosan 5-7 gyermek lép az általános iskola első osztályába. Így minden tanévben indítunk egy új évfolyamot. Emellett a főként budapesti magántanulóink számára is biztosítani kell a férőhelyet, s emiatt nagy szükség volt egy új épületre. Az idei évtől pedig az első középiskolásaink is megjelentek, akik évről évre szintén egyre többen lesznek, s ők is igénylik a megfelelő helyet a felkészülésükhöz.
Egyházunk vezetői testülete központi költségvetési keretekből támogatta ezt a jelentős beruházást, amiért mindannyian nagyon hálásak vagyunk.
Egy olyan tervet álmodtunk meg, ami stílusjegyeiben illeszkedik a meglévő iskolaépülethez, de a nem messze lévő Tehénvédelmi Központtal is harmonizál. A tervek előkészítésében egyházunk vezető lelkésze, Śrīla Śivarāma Swami is részt vett. A tervezőmérnök Mihálcz István volt. Ő korábban Budapesten már több iskola tervezésében jelentős referenciákkal rendelkezett, s egyben a Krisna-tudat iránt is lelkesen érdeklődik. A tervek elkészítése és engedélyeztetése hosszú hónapokat vett igénybe.
Néhány héttel ezelőtt végül elkezdődött az épület kijelölése, a földmunka és az alap betonozása. A múlt héten pedig egy még látványosabb részhez érkeztünk, elkezdődtek a falazási munkálatok.
Előre láthatólag az idei év végén átadásra kerül az új iskolaépület, amelyet nem csak az általános iskolások, hanem a középiskolásaink is használnának. Az építés jelentősebb fázisairól rendszeresen hírt fogunk adni.




